楼盘:英联国际
位置:火车南站西路27号
房号:1607-10
面积:620.96平米
价格:75元含税
付款方式:押二付三、押二付六
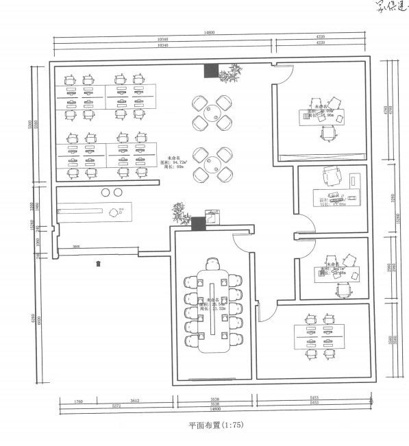
格局:10+16(工位区可增加到36个个工位)
物业费:13元(含中央空调使用费)
欢迎各位精英推荐
贺颖:13568894446













英联国际-15A06
火车南站西路,甲级写字楼
面积:297.34平米
价格:75含税
交付标准:精装带部分家具,4个办公室,1个大会议室,(通上下水,要改造)公共办公区可放20+工位。
物业费:13元(含中央空调使用费)









英联国际
火车南站西路,甲级写字楼
房号:1706
面积:293.12平米
价格:75元含税
交付标准:装修带家具,4个办公室,1个会议室,1个卫生间,
物业费:13元(含中央空调使用费)
欢迎各位精英推荐










英联国际
火车南站西路,甲级写字楼
房号:15A10
面积:109.16平米
价格:75元含税
格局:电梯口,4个隔间4个工位(可调整)
物业费:13元(含中央空调使用费)





15A02+15A02
英联国际
火车南站西路,甲级写字楼
房号:15A02+15A02
面积:585.6平米
价格:75元含税
格局:11个隔间(5个直播间小房子)+1个会议室+50个工位+
物业费:13元(含中央空调使用费)
欢迎各位精英推荐




